精裝修工程細部節點構造施工示意圖,就是這么全!

2、室內防水地面石材施工示意圖

3、陽臺地面石材(磚)施工示意圖

4、地面地漏安裝示意圖

5、衛生間地漏施工示意圖

6、衛生間地漏施工示意圖

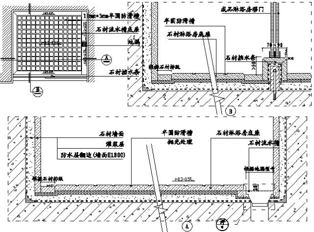
7、開門淋浴房石材施工示意圖

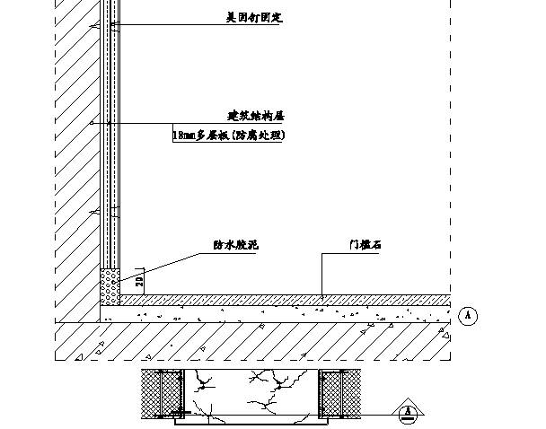
8、廚衛門套根部防水施工示意圖

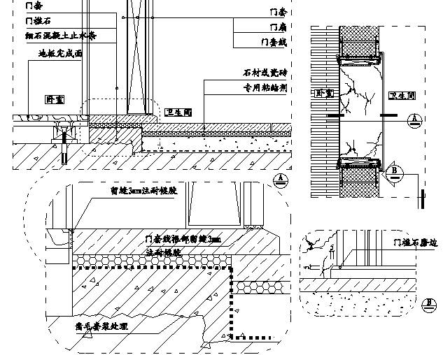
9、廚衛門套、門檻石安裝示意圖1

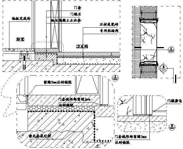
10、廚衛門套、門檻石安裝示意圖2

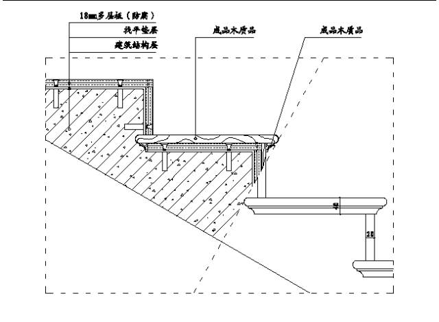
11、樓梯地面石材飾面示意圖

12、石材加厚邊施工示意圖

13、地毯與踢腳線收口節點

14、地面地毯與石材拼鋪界面節點(不銹鋼條分縫拼鋪方式)

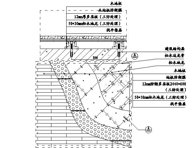
15、實木地板鋪裝示意圖01

16、實木地板鋪裝示意圖02

17、實木地板鋪裝示意圖03

18、實木地板與踢腳線收口節點

19、樓梯地面木地板飾面示意圖

20、地面木地板與石材拼鋪節點(硬碰拼鋪方式)

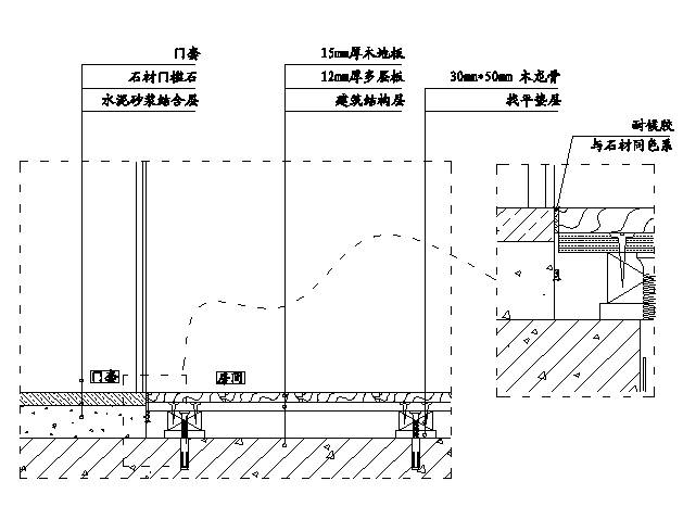
21、地面木地板與門檻石界面收口節點

22、石材灌漿施工示意圖

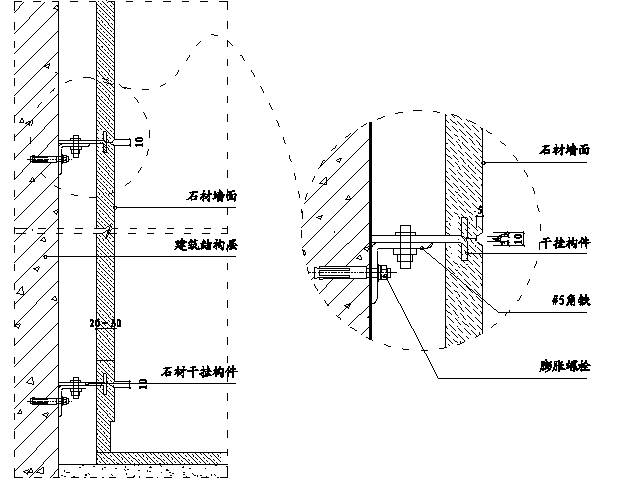
23、石材干掛法施工示意圖01

24、石材干掛法施工示意圖02

25、膠粘劑粘貼施工示意圖(木基層)

26、墻面石材U型凹槽排版示意圖

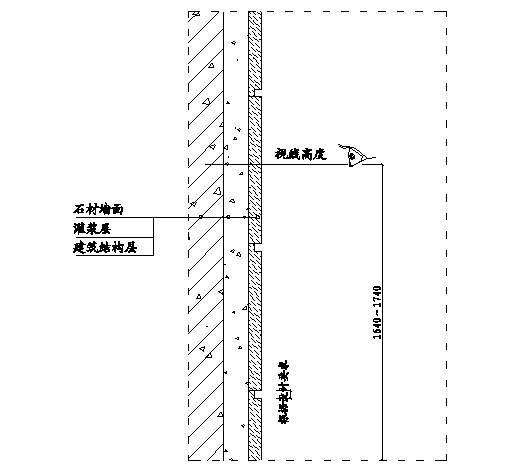
27、墻面石材陽角收口示意圖

28、墻面石材陽角收口示意圖

29、石材檢修門示意圖

30、鋼架臺盆安裝示意圖

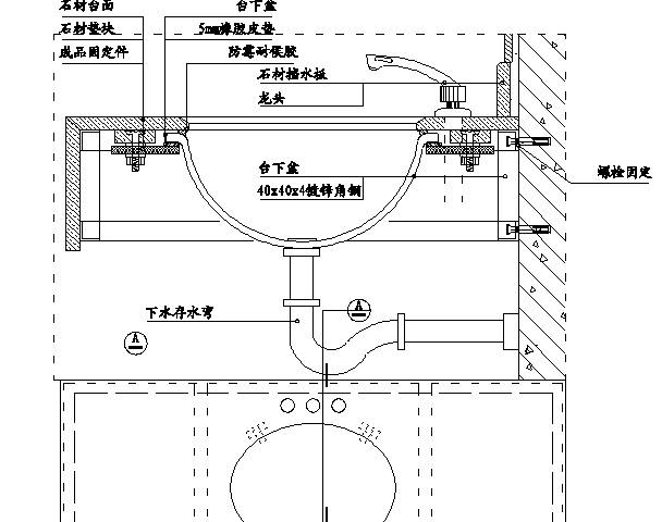
31、臺下柜臺盆安裝示意圖

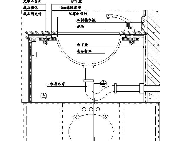
32、衛生間玻璃隔斷與大理石墻面交接施工節點

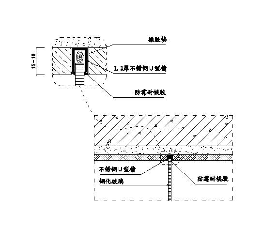
33、淋浴房門預埋件安裝示意圖

34、衛生間壁龕施工示意圖

35、浴缸石材收口施工示意圖01

36、浴缸石材收口施工示意圖02

37、浴缸石材收口施工示意圖03

38、全窗臺櫥柜臺面翻邊施工示意圖


3本一套施工技藝大全
價格:218元
現貨發售
39、高窗臺櫥柜臺面翻邊施工示意圖

40、低窗臺櫥柜臺面翻邊施工示意圖

41、墻面直板木飾面安裝示意圖

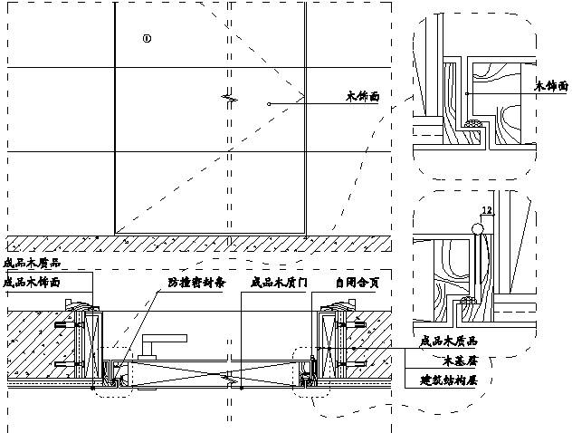
42、成品門套施工示意圖01

43、成品門套施工示意圖02

44、成品暗門套施工示意圖

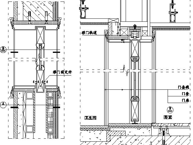
45、移門示意圖01

46、移門示意圖02

47、黏土磚墻面壁紙施工示意圖

48、輕質磚墻面壁紙施工示意圖

49、輕鋼龍骨隔墻壁紙施工示意圖

50、不同材質隔墻涂料施工示意圖

51、墻面瓷磚陰陽角收口示意圖

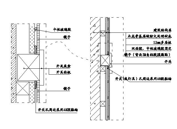
52、鏡子玻璃安裝示意圖

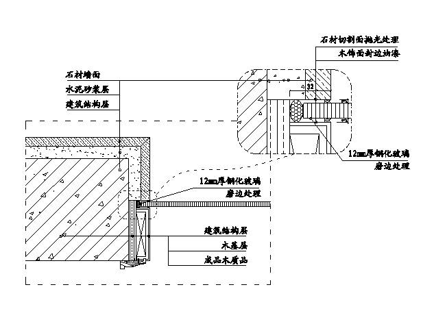
53、墻面石材玻璃木飾面交接示意圖

54、墻面石材與石膏板涂料天花收口節點

55、門梁部位墻紙收口示意圖




56、地面隔墻施工示意圖

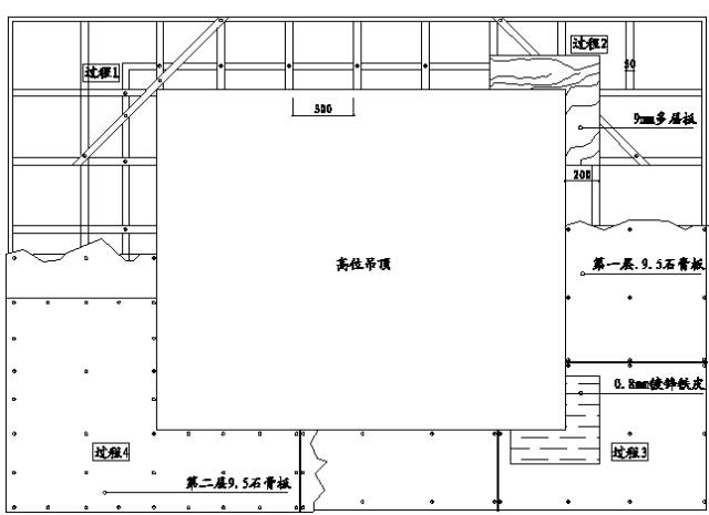
57、疊級吊頂防開裂示意圖

58、窗簾盒木基層接口制作示意圖

59、窗簾盒制作示意圖

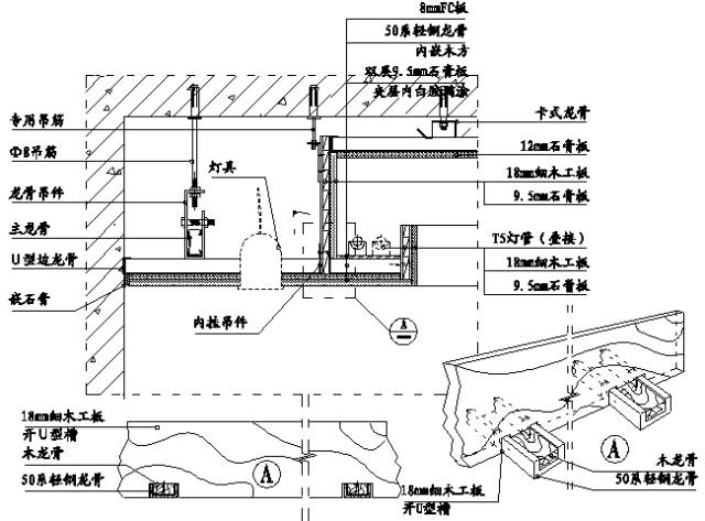
60、陰角槽施工示意圖

61、弧形暗光槽施工示意圖

62、疊級吊頂暗光槽施工示意圖

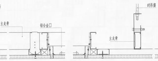
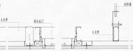
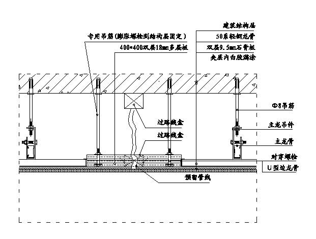
63、吊頂檢修口(不上人)示意圖01

64、吊頂檢修口(不上人)示意圖02








65、吊燈安裝示意圖1

66、吊燈安裝示意圖2

67、吊燈安裝示意圖3

68、空調風口安裝示意圖(側出底回)

69、空調風口安裝示意圖(底出底回)

70、吊頂伸縮縫施工節點

71、淋浴房玻璃隔斷吊頂施工示意圖


